Features
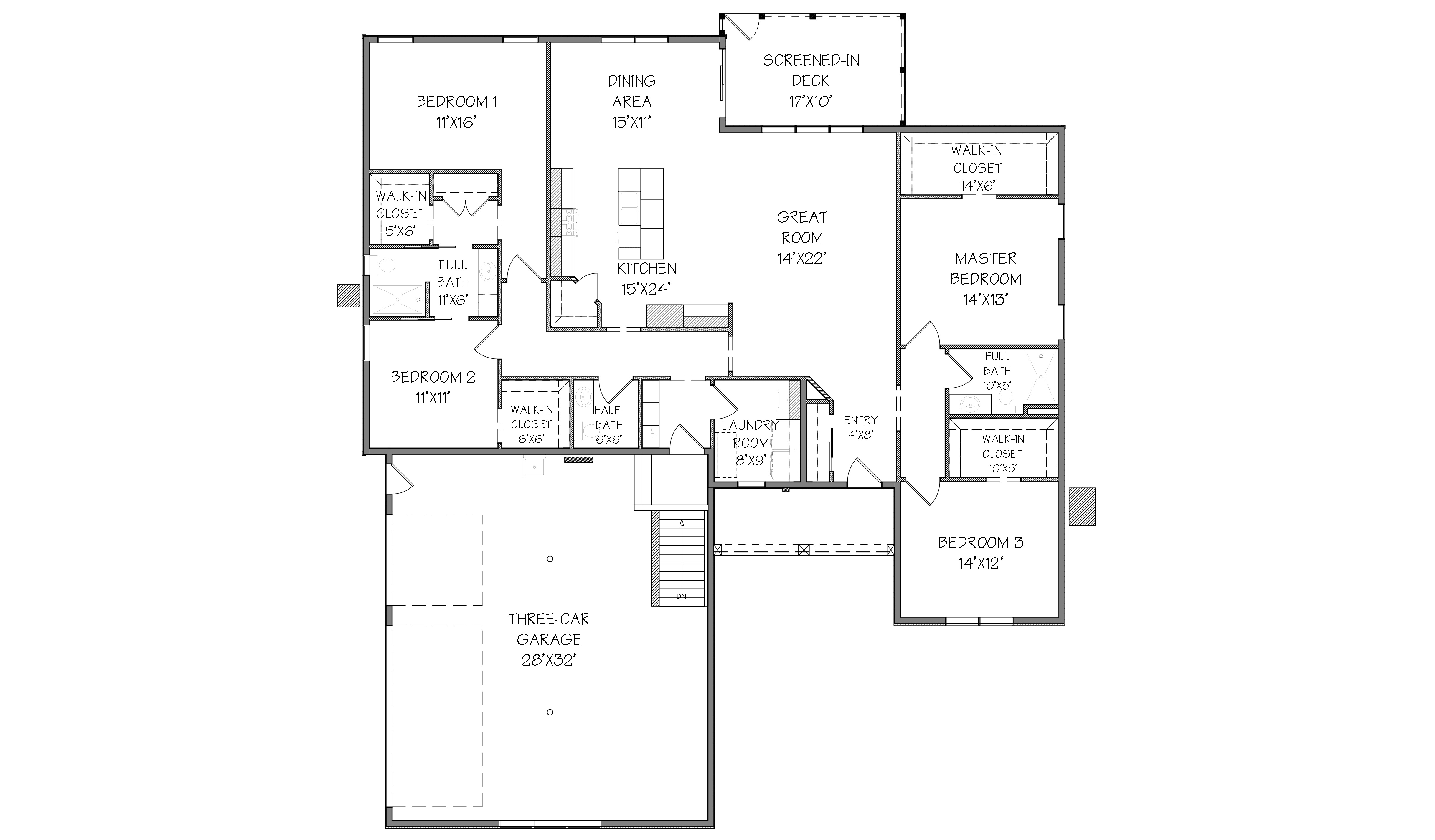
This modern ranch home offers 2,329 square feet of beautifully crafted living space, designed for both comfort and sophistication. The open-concept layout connects the kitchen, great room, and dining area in a seamless flow, creating an inviting atmosphere for family gatherings and entertaining. With four spacious bedrooms and four luxurious bathrooms, the home provides generous accommodations for family and guests alike. A private office space adds versatility for remote work or study, while the screened-in deck extends the living area outdoors—perfect for relaxing or enjoying evening breezes. A three-car garage completes this refined design, combining practicality with the effortless elegance of modern ranch living.

