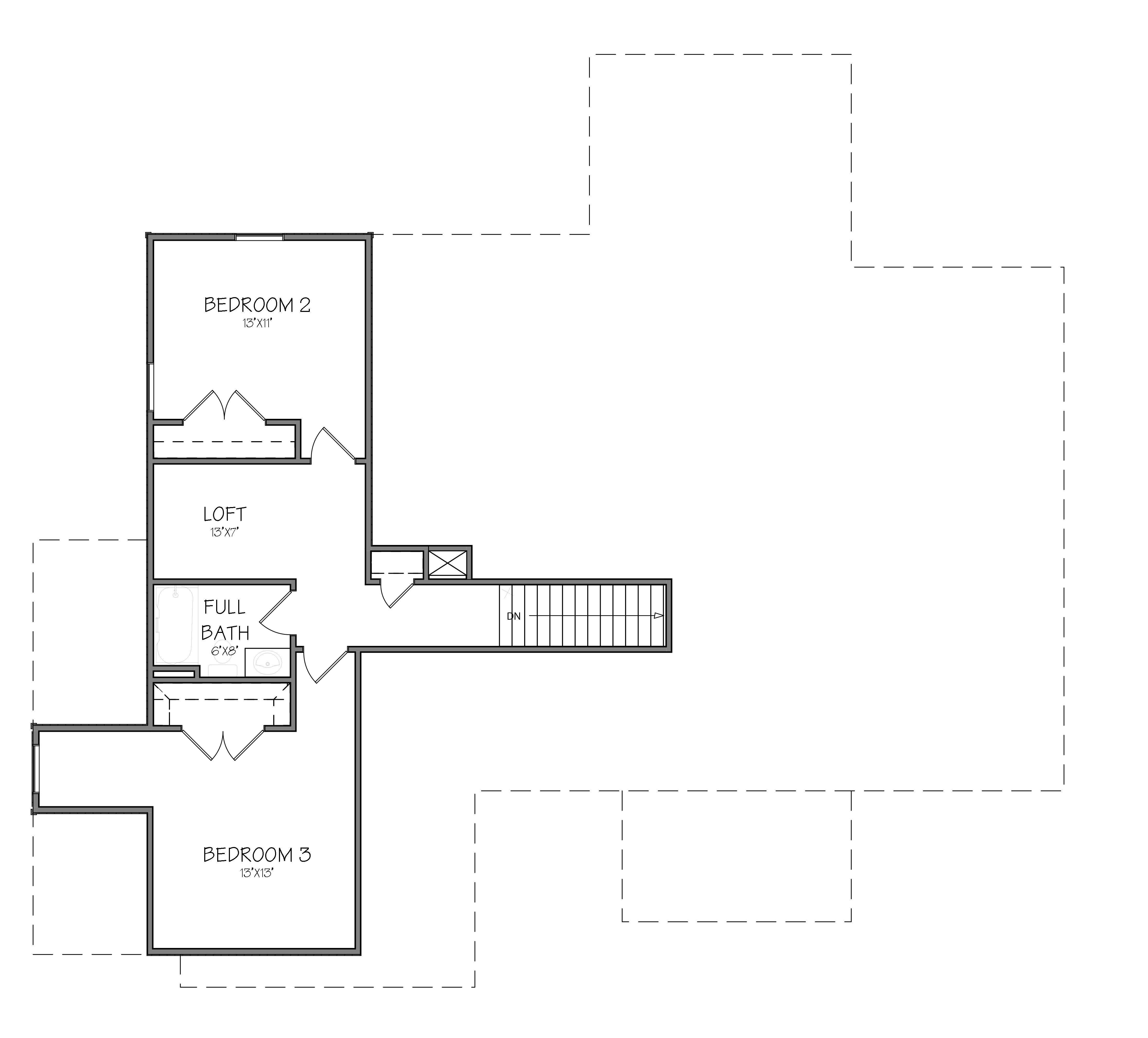
Features
This elegant modern two-story home offers 2,482 square feet of thoughtfully designed living space, combining contemporary style with everyday comfort. The open floor plan seamlessly connects the kitchen, great room, and dining area, creating a bright and inviting atmosphere perfect for entertaining or family living. With three spacious bedrooms and three beautifully appointed bathrooms, the home provides both luxury and functionality. Each bedroom features walk-in closets, offering ample storage and a touch of refinement. A dedicated office space provides the perfect setting for work or creative pursuits, while the two-car garage adds convenience and practicality. Blending modern design with timeless comfort, this home is ideal for those seeking sophistication and ease in every detail.


